Viola_1000_1000_
73 lakásos lakóépület

Tervezési helyszín: Budapest, IX.ker.

Tervező Iroda: KEK Card Kft.

Tervezés éve: 2016 március

Tervezési program: Új épület, foghíj beépítés

Tervezők: Kovács Krisztina, Kovács Zoltán

                  Könözsi Gábor

                  Flaisz Ágota

                  Póra Csaba

                  Gáspár Csilla

Vissza
BP09VIBA_engterv_050m
2200_1900_szerkezeti rajz 1
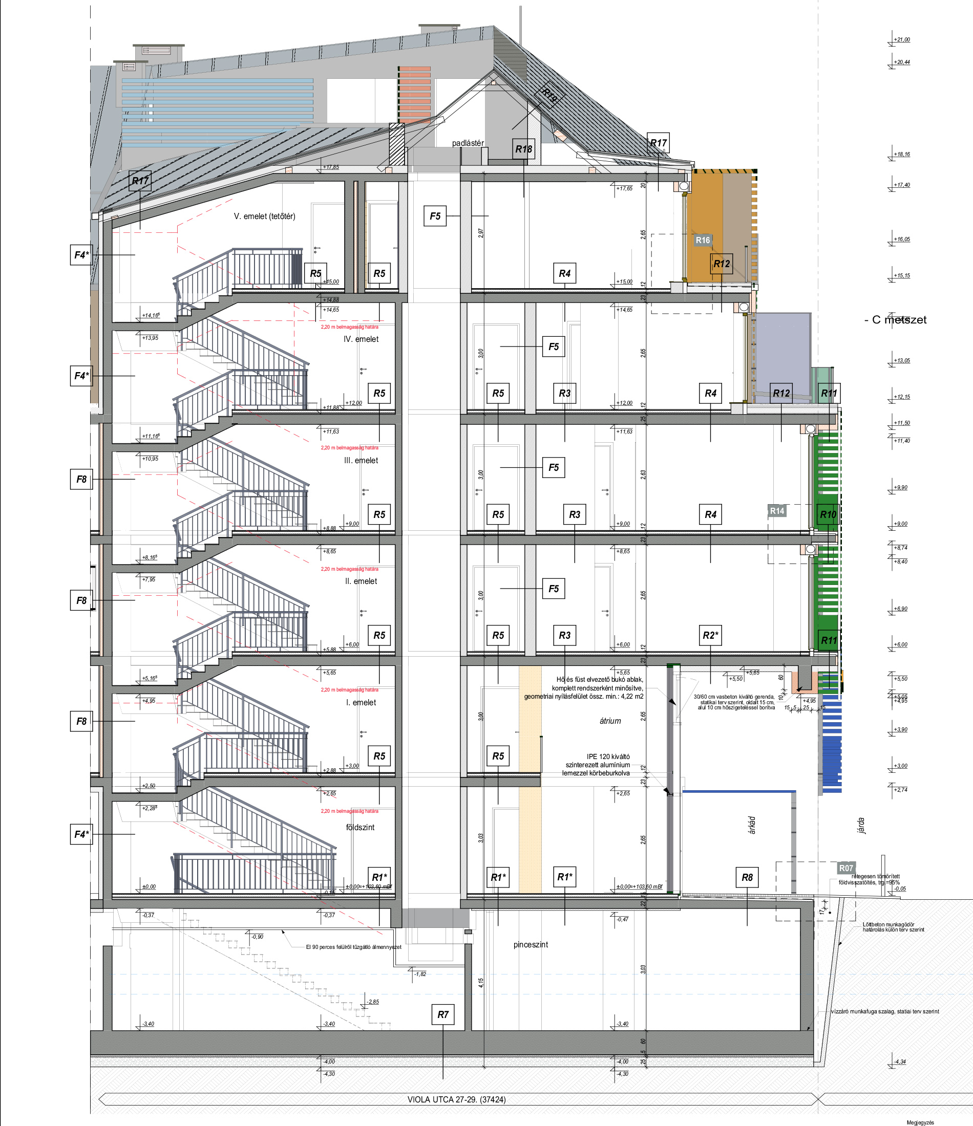
2400_1500_metszet
OLYMPUS DIGITAL CAMERA
BP09VIBA_eladasi_010m
2200_1900_szerkezeti rajz 2