00_Sárga
Fémmegmunkáló üzem és raktár

Tervezési helyszín: Kisújszállás

Alapterület: 1000 m2

Tervező iroda: Térváz Kft.

Tervezés éve: 2017 október

Tervezők: Petőcz-Tóth Anikó, Gáspár Csilla

Tervezési program: Ipari épület, meglévő épület bővítése, szabadon álló

Vissza
Homlokzatok
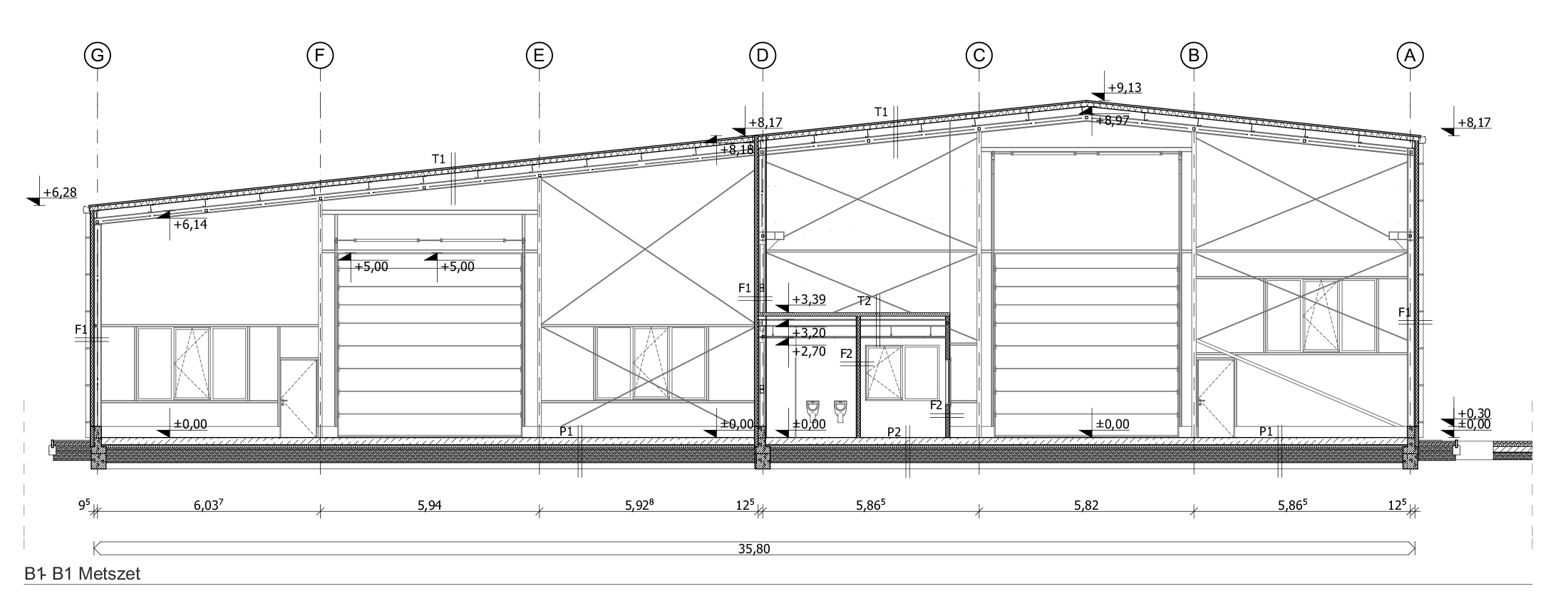
B1 metszet
Tető alaprajz